to top
2 آموزش درج آگهی فروش کارخانه
3 هفته پیش 179
2 تبلیغ فیلم صنعتی  در ایران کارخانه
3 هفته پیش 142
2 فروش دستگاه در ایران کارخانه
3 هفته پیش 144
1 مجوز واردات بیل کوماتسو 200
1 هفته پیش 335
1 ساخت انواع  اکسترودر گرانول ساز
1 ماه پیش 1194
1 دیگ های بخار
ماشین آلات صنعتی

دیگ های بخار

1 ماه پیش 178
1 دیگ  بخار  آب گرم   روغن داغ
1 ماه پیش 192
1 دیگ بخار 3 تن / آذر استیل فن آوران
1 ماه پیش 158

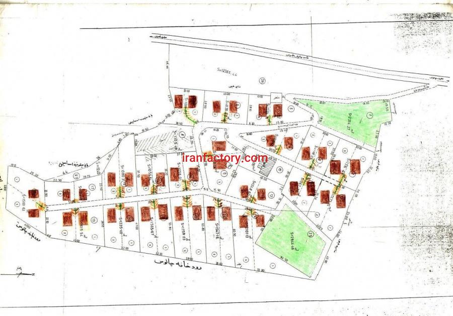
فروش زمین بر جاده چالوس

فروش زمین بر جاده چالوس

زمین بر جاده چالوس جهت انجام پروژه های بزرگ کارخانه شهرک سازی خدمات تفریحی ......


قیمت فروش زمین بر جاده چالوس

18,800,000,000 تومان

آدرس

7 کیلومتری مرزن آباد


شماره آگهی: 27323

تماس
چت
پیامک

تاریخ به روزرسانی: 1 سال پیش

شماره همراه

09190555510

مشخصات آگهی دهنده:



دریافت مشاوره در زمینه املاک صنعتی
مشاوره املاک صنعتی
loader

لطفا شکیبا باشید ...